УБЕЖИЩА В ПОДВАЛЕ КЛУБОВ, ДВОРЦОВ КУЛЬТУРЫ
Типовой проект Б-3-535(264-12-162) Помещения двойного назначения первого этажа городского дома культуры с залом на...
Типовой проект Б-3-530(264-13-83с) Помещения 1-го этажа кинотеатра на 500 мест со стенами из кирпича, (убежище на ...
Типовой проект Б-3-524(264-13-107) Помещения 1го этажа детского двухзального кинотеатра с залами на 400 и 200 мест...
Типовой проект Б-3-490(261-12-213см) Бытовое помещение 1 этажа сельского дома культуры (в конструкциях ии-04) с зало...
Типовой проект Б-3-420(264-12-205) Помещения 1го этажа сельского дома культуры культуры с залом на 300 мест с адми...
Типовой проект Б-3-390(264-13-104) двойное использование помещений 1го этажа детского кинотеатра на 300 мест со ст...
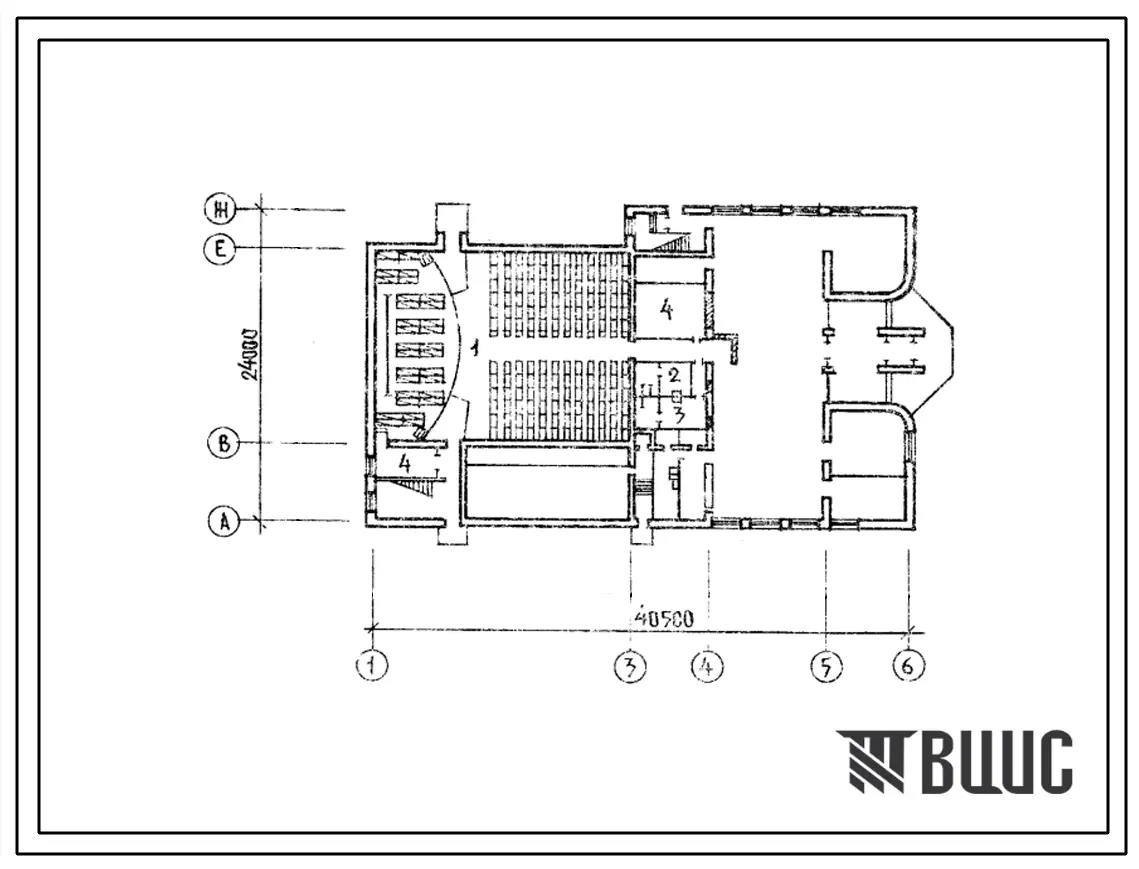
Типовой проект Б-3-300(264-12-210) Помещения 1 этажа городского дома культуры с залом на 500 мест(со стенами из ки...
Типовой проект Б-3-290(262-12-180) Двойное использование помещений подвала 1 этажа городского клуба на 500 мест в ...
Типовой проект Б-3-280(264-13-110см) Помещения 1 этажа кинотеатра на 300 мест(стены кирпичные), (убежище на 280 чело...
Типовой проект Б-3-280(262-12-187с) Двойное использование помещений 1 этажа сельского клуба с залом на 200 мест, (у...
Типовой проект Б-3-267(264-12-181) Двойное использование помещений первого этажа сельского клуба с залом на 150 ме...
Типовой проект Б-3-260(264-13-76) Двойное использование первого этажа кинотеатра на 200 мест с фойе со стенами из...
Типовой проект Б-3-232(264-12-202с) Двойное использование помещений 1 этажа клуба на 200 мест с административными п...
Типовой проект Б-3-205(262-21-33с) Двойное использование помещения первого этажа универсального административного ...
Типовой проект Б-3-162(264-12-193с) Двойное использование помещений 1 этажа сельского клуба с залом на 200 мест с л...
Типовой проект Б-3-113(264-15-44с) Помещения 1 этажа библиотеки на 75 тысяч томов, (убежище на 113 человек, размер...
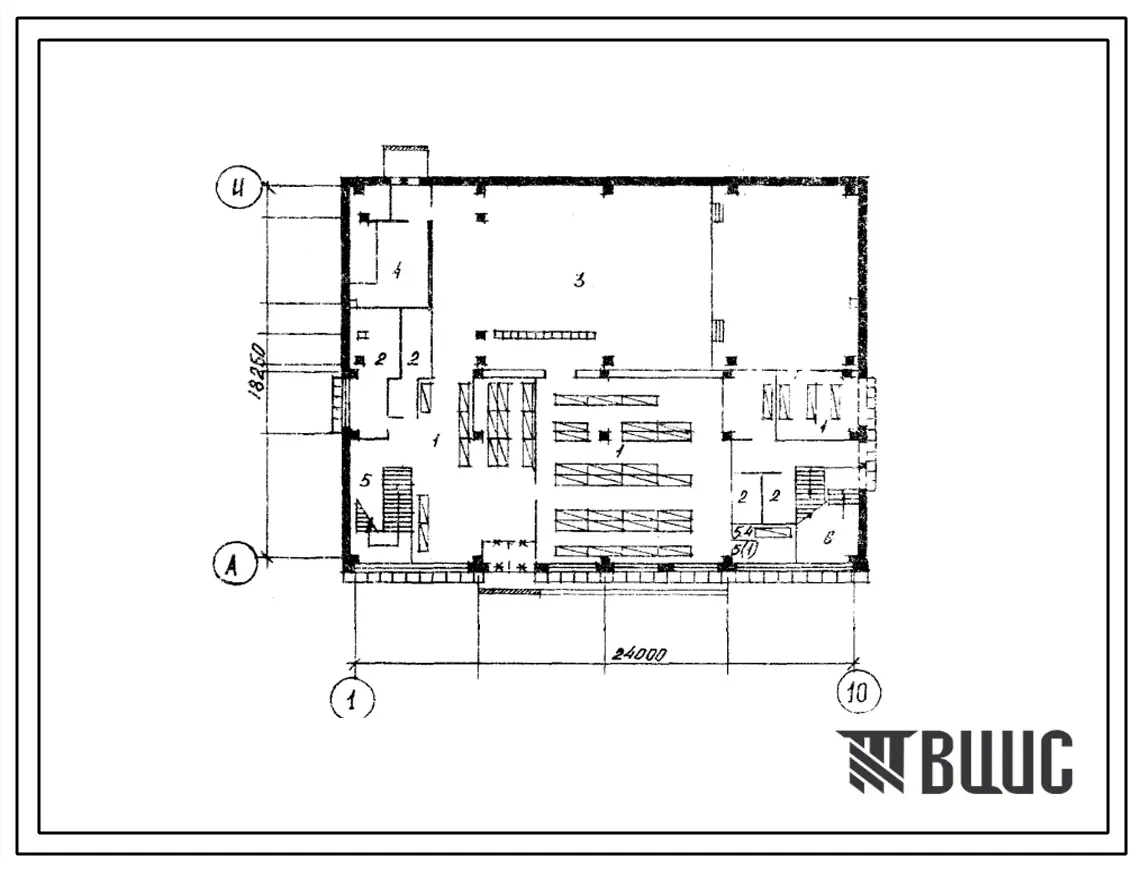
Типовой проект Б-2-365-78.1(264-12-171) Хозяйственно-бытовые помещения в подвале сельского дома культуры с залом на 400...
Типовой проект Б-2-360(264-12-214с) Хозяйственно-бытовые помещения подвала сельского клуба с залом на 400 мест, (уб...
Типовой проект Б-2-335(262-19-24) Складные помещения в подвале фильмотеки на 5000 фильмокопий, (убежище на 335 че...
Типовой проект Б-2-280(264-12-197) Хозяйственно-бытовые помещения,приспосабливаемые под ПРУ в подвале клуба на 200...
Типовой проект Б-2-200-77.226(263-15-38с) Хозяйственно-бытовые помещения в подвале сельской библиотеки на 25 тысяч томов,...
Типовой проект Б-2-100(261-12-135-203) Позиция 1 этажа сельского клуба на 300 мест, (убежище на 100 человек, размеры у...
Типовой проект Б-2-40(264-22-16) Помещения подвала здания отделения стройбанка (стены кирпичные) на 30 сотрудник...
Типовой проект Б-1-1930(262-26-1) Помещения гаража-стоянки здания проектных организаций (в конструкциях ии-04) на...
Типовой проект Б-1-1698(264-19-23) Хозяйственно-бытовые помещения в подвале здания городского дома политического п...
Типовой проект Б-1-760(264-19-23) Двойное использование помещений первого этажа городского дома политического про...
Типовой проект Б-1-530-78/294(285-5-44) Помещения 1 этажа кинотеатра на 300 мест с киноплощадкой на 500 мест со стенами...
Типовой проект Б-1-335(262-19-24) Складские помещения в подвале фильмотеки на 5000 фильмокопий, (убежище на 335 ч...
Типовой проект Б-1-255(262-12-186) Хозяйственно-бытовые помещения, в подвале районного дома культуры в полносборны...
Типовой проект А-2-300-79/205М Помещение 1 этажа сельского дома культуры с залом на 300 мест с административны...
НАШ СПЕЦИАЛИСТ ПОМОЖЕТ ВАМ





























