УБЕЖИЩА В ПОДВАЛЕ ТОРГОВЫХ ПРЕДПРИЯТИЙ
Типовой проект Б-3-384(284-3-35) Помещения 1 этажа зданий предприятий хозяйственно-технического обслуживания, (у...
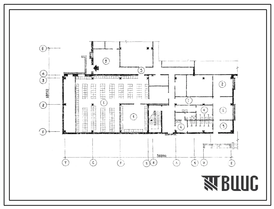
Типовой проект Б-3-384(282-3-36) Помещения первого этажа зданий предприятий хозяйственно-технического обслуживан...
Типовой проект Б-3-375(272-30-94с) Двойное использование помещений первого этажа торгового центра, (убежище на 375...
Типовой проект Б-3-375(272-15-8с) Двойное использование помещений 1 этажа унифицированного здания магазина,в конс...
Типовой проект Б-3-300(272-18-2) Хозяйственно-бытовые помещения,приспосабливаемые под ПРУ в подвале унифицирован...
Типовой проект Б-3-270(272-18-3) Помещения 1 этажа унифицированного встроенно-пристроенного блока 1у универсама ...
Типовой проект Б-3-248(272-15-7) Двойное использование помещений 1 этажа унифицированного здания магазина, торго...
Типовой проект Б-3-200(272-14-13с) Приспособление помещений 1 этажа под ПРУ рыночного павильона торговой площадью ...
Типовой проект Б-3-197(272-28-1сп) Помещения 1 этажа универсама торговой площадью 380 м2, (убежище на 197 человек,...
Типовой проект Б-3-140(272-23-10) Двойное использование помещений 1 этажа комплексного предприятия общественного ...
Типовой проект Б-3-140(272-14-15с) Помещения рыночного павильона торговой площадью 900 кв.метров, (убежище на 140 ...
Типовой проект Б-3-130(272-20-121) Двойное использование помещений 1 этажа столовой на 550 мест, работающих на сыр...
Типовой проект Б-3-130(272-20-120) Двойное помещение 1 этажа столовой на 550 мест, работающих га сырье, (убежище н...
Типовой проект Б-3-118(274-20-70) Хозяйственно-бытовые помещения 1 этажа столовой доготовочной на 300 мест, (убеж...
Типовой проект Б-3-112(274-20-68) Хозяйственно-бытовые помещения 1 этажа столовой доготовочной на 100 мест, работ...
Типовой проект Б-3-110(272-23-9) Двойное использование помещений первого этажа комплексного предприятия обществе...
Типовой проект Б-3-100(272-18-1) Двойное использование помещений первого этажа унифицированного встроенно-пристр...
Типовой проект Б-3-90(284-1-88) Двойное использование помещений 1 этажа интерната при школе (спальный корпус), ...
Типовой проект Б-3-90(274-20-53) Хозяйственно-бытовые помещения первого этажа столовой общего типа на 104 места,...
Типовой проект Б-3-90(272-21-9.79) Двойное использование помещений 1 этажа ресторана на 250 мест, (убежище на 90 ч...
Типовой проект Б-3-90(272-20-58) Хозяйственно-бытовые помещения 1 этажа столовой на 300 мест, работающей на сырь...
Типовой проект Б-3-90(272-13-80п) Двойное использование помещений 1 этажа универсама,в конструкциях ии-04,торгово...
Типовой проект Б-3-85(272-10-2с) Хозяйственно-бытовые помещения 1 этажа магазина РЫБА торговой площадью 250 кв.м...
Типовой проект Б-3-80(272-13-81) Двойное использование помещений 1 этажа универсама, в конструкциях ии-04, торго...
Типовой проект Б-3-72(272-32-54) Двойное использование помещений 1 этажа комплексного предприятия общественного ...
Типовой проект Б-3-70(284-1-87.80) Помещения 1 этажа сельского дома быта на 46 рабочих мест, (убежище на 70 челове...
Типовой проект Б-3-70(284-1-87) Двойное использование помещений первого этажа дома быта на 50 рабочих мест, (уб...
Типовой проект Б-3-70(284-1-83) Двойное использование 1 этажа сельского дома быта на 35 рабочих мест, (убежище ...
Типовой проект Б-3-65(272-23-12с) Помещения 1 этажа комплексного предприятия общественного питания (в конструкция...
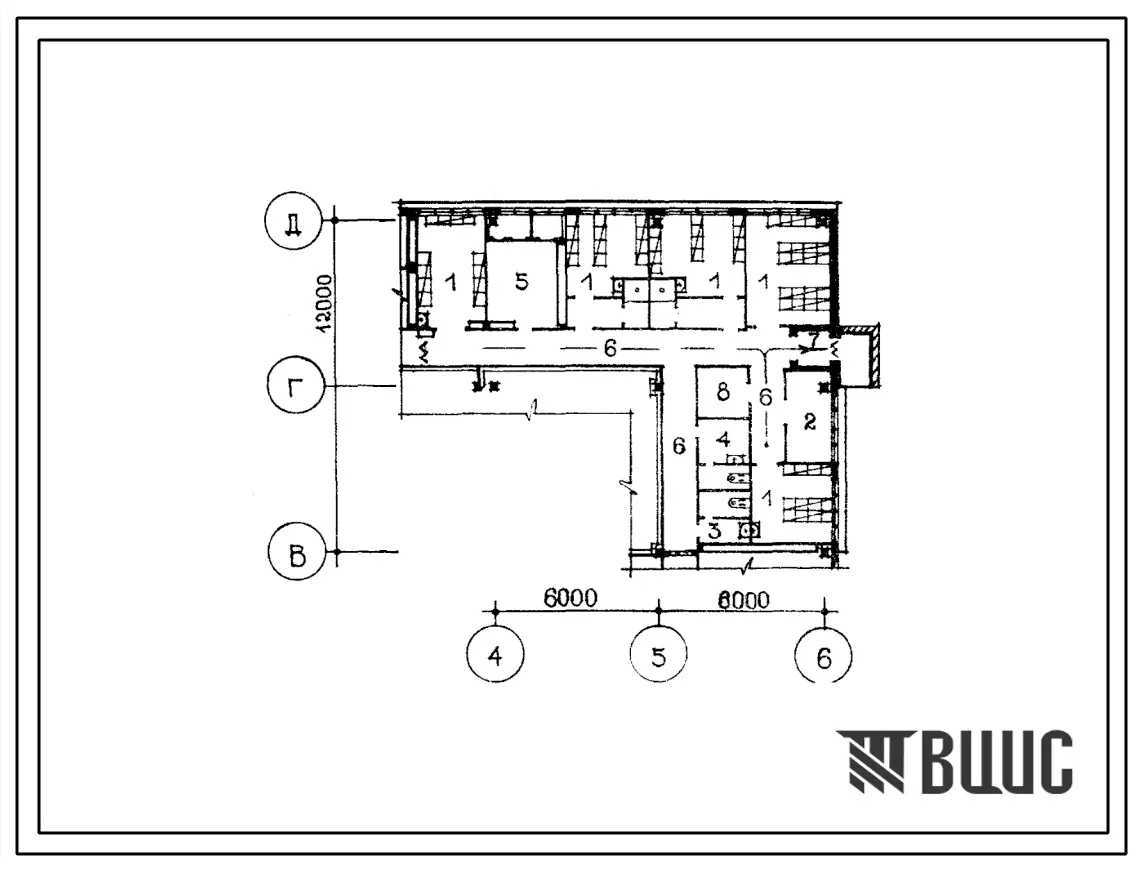
Типовой проект Б-3-34(274-22-42) Помещения 1 этажа в корпусе административных и вспомогательных служб для рыбово...
НАШ СПЕЦИАЛИСТ ПОМОЖЕТ ВАМ





























