УБЕЖИЩА НА СООРУЖЕНИЯХ ТРАНСПОРТА
Типовой проект Б-2-200(506-120) Служебно-бытовые помещения 1 этажа служебно-пассажирского здания с кдп-у для кр...
Типовой проект Б-2-185(503-3-4) Хозяйственно-бытовые помещения,1 этажа профилактория для гаража на 150 автомоби...
Типовой проект Б-2-150(503-9-1) Хозяйственно-бытовые помещения 1 этажа контрольно-пропускного пункта базы произ...
Типовой проект Б-2-120(506-118) Помещения технического класса здания авиационно-технической базы 1у группы, (уб...
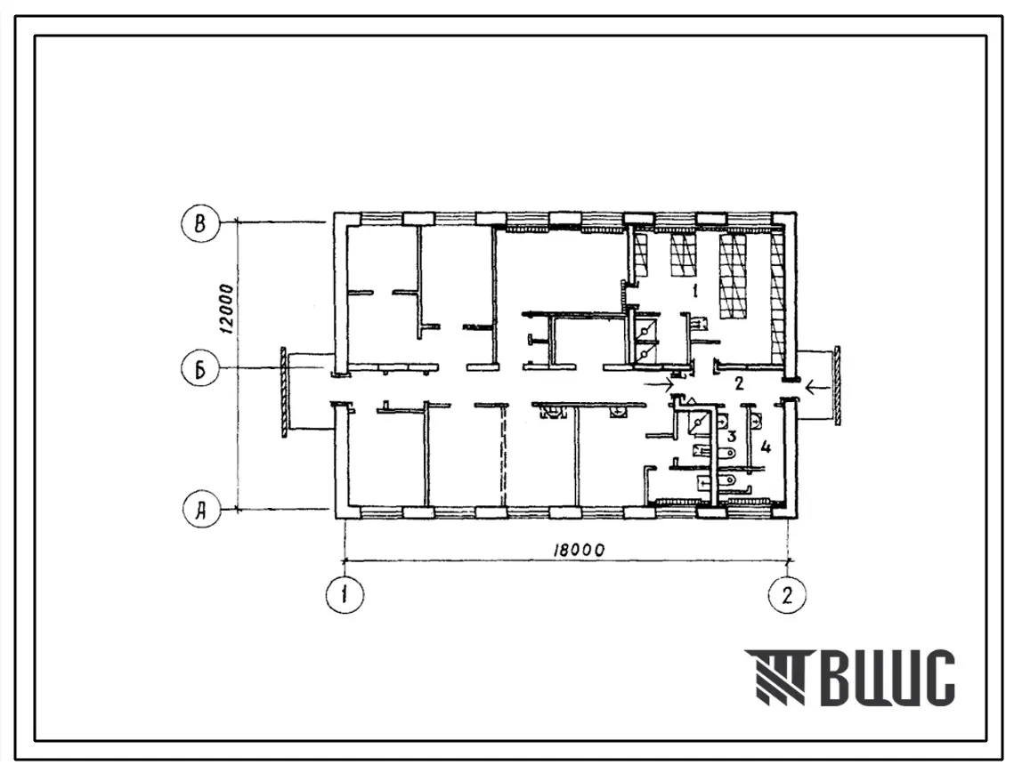
Типовой проект Б-2-100(501-313) Двойное использование помещений 1 этажа в здании пункта технического обслуживан...
Типовой проект Б-2-100(501-306) Бытовые помещения на 1м этаже в здании пункта технического обслуживания вагонов...
Типовой проект Б-2-50(501-309) Бытовые помещения на 1м этаже в здании пункта контрольно-технического обслужива...
Типовой проект Б-2-50(501-308) Бытовые помещения на 1м этаже в здании пункта контрольно-технического обслужива...
Типовой проект Б-2-50(501-307) Бытовые помещения на 1м этаже в здании пункта технического обслуживания вагонов...
Типовой проект Б-2-23(503-2-4) Бытовые посещения 1-го этажа филиала автотранспортного предприятия на 17 автобу...
Типовой проект Б-2-23(503-2-3) Бытовые помещения 1 этажа филиала автотранспортного предприятия на 15 автобусов...
Типовой проект Б-1-150(501-9-1) Бытовые помещения,расположенные в подвале пункта контрольно-технического обслуж...
Типовой проект Б-1-50(506-110) Двойное использование помещений 1 этажа здания технических бригад /стены из кир...
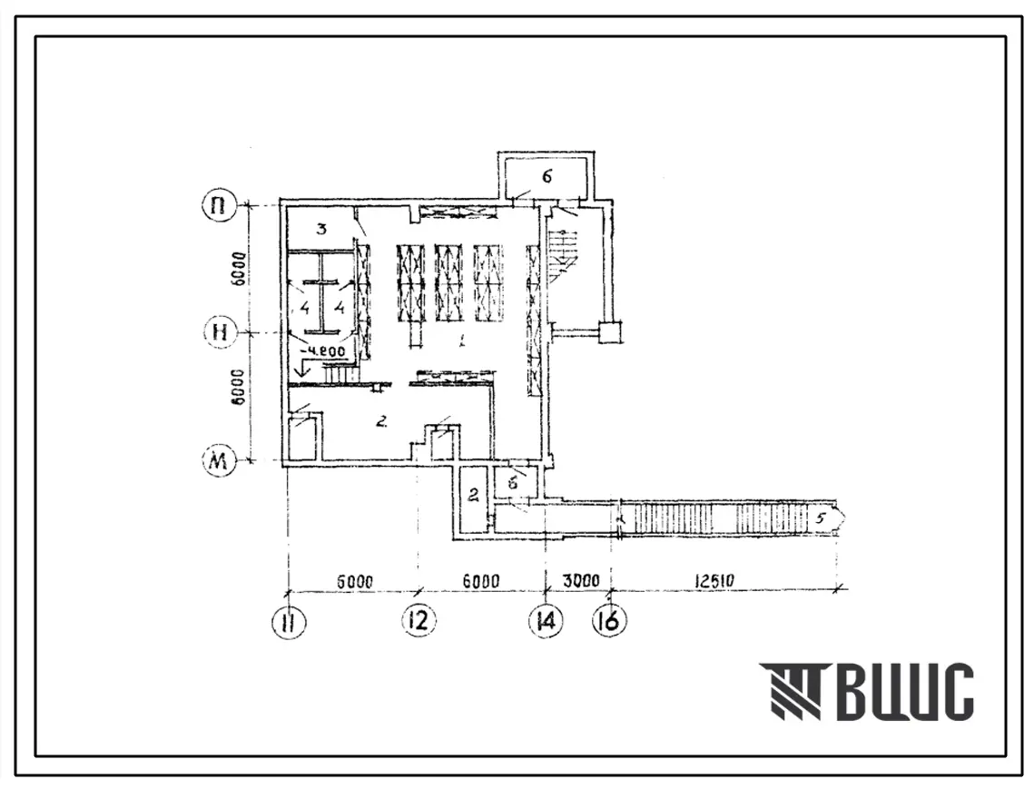
Типовой проект Б-1-40(503-3-7) Складские помещения в подвале постового профилактория для обслуживания и ремонт...
Типовой проект А-3-120(506-119) Помещение техкласса в подвале здания авиационно-технической базы 1у группы, (уб...
Типовой проект А-3-25(501-5-57.85) Помещения подвального этажа в доме связи тип 3, (убежище на 25 человек, размеры...
Типовой проект А-3-300(501-6-6) Убежище в подвале вспомогательного здания для железнодорожной станции типа 2, (...
Типовой проект А-2-300(501-6-5) Убежище в подвале вспомогательного здания для железнодорожной станции типа 2, (...
Типовой проект А-2-600(506-142..86) Вспомогательные помещения в подвале на 400 пассажиров в час для внутрисоюзных л...
Типовой проект А-2-300(506-127.84) Помещения техклассов в подвале производственного здания авиационно-технической ...
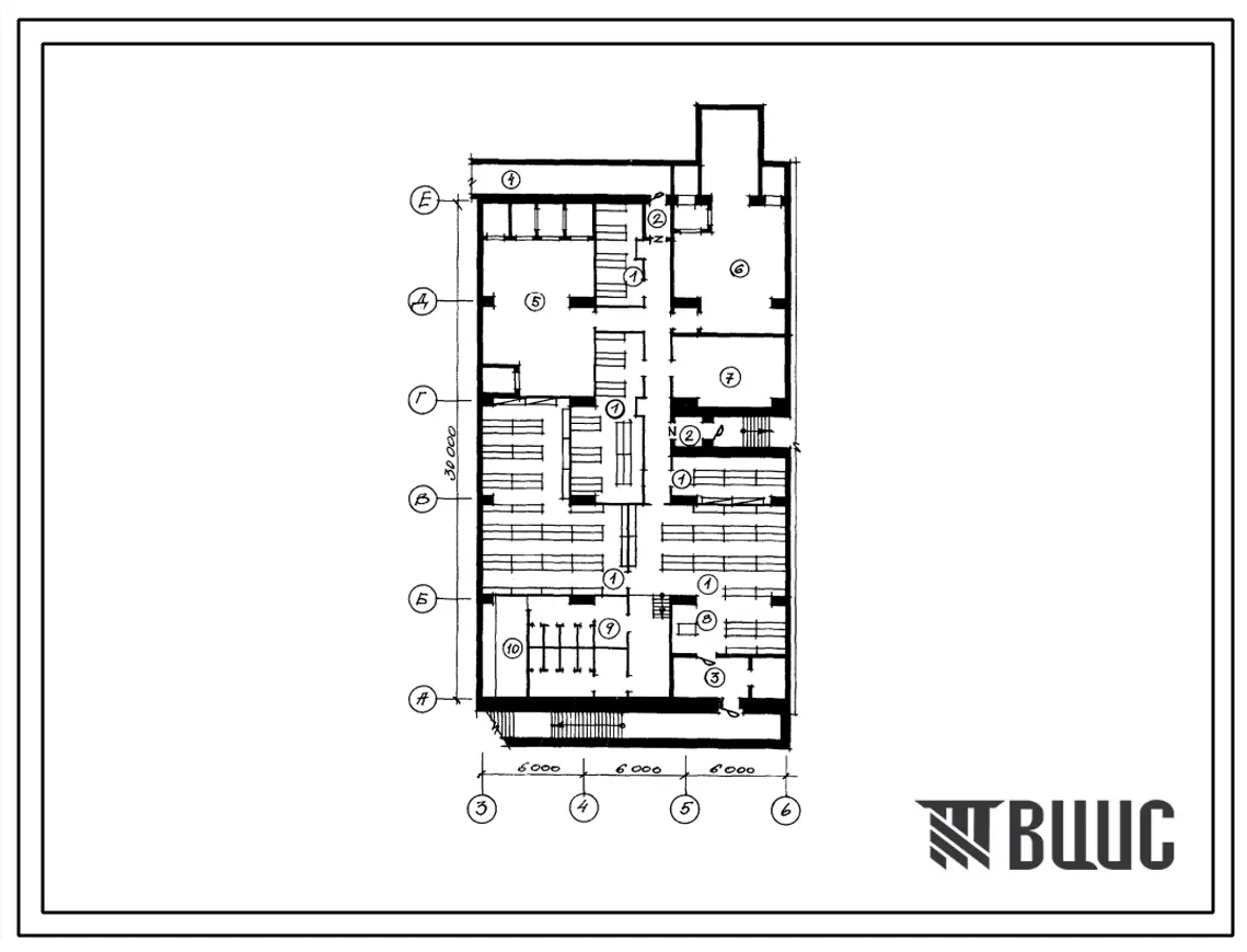
Типовой проект А-II,III,IV-300-273.84 Склад инвентаря и оборудования в подвале служебно-технческого здания железнодор...
Типовой проект А-II,III,IV-300-272.84 Склад инвентаря и оборудования в подвале служебно-технческого здания железнодор...
Типовой проект А-II,III,IV-300-271.84 Склад инвентаря и оборудования в подвале служебно-технического здания железнодо...
Типовой проект А-2,3,4-300-270.84 Склад инвентаря и оборудования в подвале служебно-технического здания железнодо...
Типовой проект А-2,3,4-300-254.84 Склад инвентаря и оборудования в подвале служебно-технического здания железнодо...
Типовой проект А-2,3,4-300-253.84 Склад инвентаря и оборудования в подвале служебно-технического здания железнодо...
Типовой проект А-II,III,IV-150-249,84 Склад инвентаря и оборудования в подвале служебно-технического здания железнодо...
Типовой проект А-2,3,4-150-232.83 Склад инвентаря и оборудования в подвале служебно-технического здания железнодо...
Типовой проект А-II,III,IV-150(414-1-26.85) Склад инвентаря и оборудования в подвале служебно-технического здания железнодо...
Типовой проект А-II,III,IV-20(501-5-110.89) Помещения учебных классов в подвале административно-бытового корпуса хлебзавода...
НАШ СПЕЦИАЛИСТ ПОМОЖЕТ ВАМ





























