УБЕЖИЩА НА СКЛАДСКИХ ПРЕДПРИЯТИЯХ
Типовой проект Б-2-450(701-1-31с) Хозяйственно-бытовые помещения 1 этажа общетоварного склада продовольственных т...
Типовой проект Б-2-150(701-4-75) Бытовые помещения 1 этажа холодильника для хранения фруктов емкостью 8000т(1000...
Типовой проект Б-2-100-76.164(709-9-2) Помещения склада несгораемых материалов, холодильника распределительного одноэт...
Типовой проект Б-2-100-76.139(709-9-1) Помещения склада несгораемых материалов, холодильника распределительного одноэт...
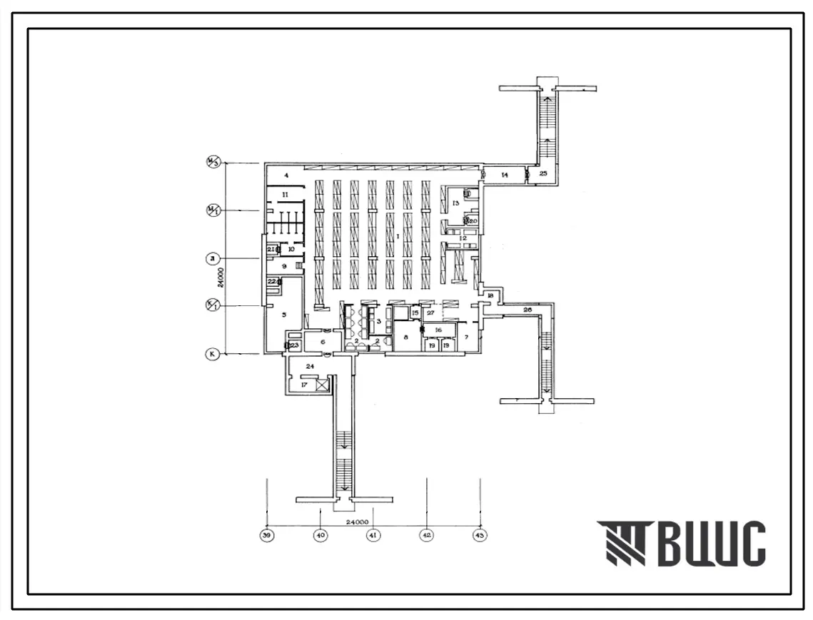
Типовой проект Б-2-100(701-4-82с) Хозяйственно-бытовые помещения 1 этажа холодильника для хранения 5 тыс тонн фру...
Типовой проект Б-2-60(701-4-68с) Бытовые помещения, приспосабливаемые под ПРУ, 1 этажа холодильника для хранения...
Типовой проект Б-2-30-77.263(701-4-66с) Административно-бытовые помещения, 1-го этажа холодильника для хранения фруктов...
Типовой проект Б-2-28(703-1-2) Складские помещения,используемые под ПРУ на 1 этаже картофеле хранилища неохлаж...
Типовой проект Б-2-28(701-4-67с) Бытовые помещения,приспосабливаемые под ПРУ 1 этажа холодильника для хранения ф...
Типовой проект Б-1-60(701-1-32) Склад несгораемых материалов в подвале склада для хранения продовольственных то...
Типовой проект Б-1-57(701-3-20) Склад несгораемых материалов в подвале склада для хранения продовольственных то...
Типовой проект Б-1-56(701-2-26) Склад несгораемых материалов в подвале склада для хранения продовольственных то...
Типовой проект А-3-150(708-11.83) Вспомогательные в подвале блока складов с навесом и открытой площадкой базы упт...
Типовой проект А-2-150(708-9) Культурно-бытовые помещения в подвале блока складов с навесом базы управления п...
Типовой проект А-II,III,IV-135(701-3-26С.88) Материально- технические кладовые в подвале склада для хранения продовольственн...
Типовой проект А-II,III,IV-135(701-2-38.87) Материально- технические кладовые в подвале склада для хранения продовольственн...
Типовой проект А-2(3)-150(709-6-2.89) Вспомогательные помещения в подвале главного корпуса склада отапливаемого для х...
Типовой проект А-IV-210(701-2-31С.86) Вспомогательные помещения в подвале склада непродовольственных товаров для райо...
Типовой проект А-3-790(701-2-48.12.89) Материально-технические кладовые в подвале корпуса склада для хранения непродов...
Типовой проект А-3-100(701-3-27.88) Складские помещения в подвале склада продовольственных и непродовольственных то...
Типовой проект А-3-150(708-11.83) Вспомогательные в подвале блока складов с навесом и открытой площадкой базы упт...
Типовой проект А-3-100(701-3-30.88) Складские помещения в подвале склада для хранения продовольственных и непродово...
Типовой проект А-3-100(701-3-27.88) Складские помещения в подвале склада продовольственных и непродовольственных то...
Типовой проект А-3-100(701-3-23.87) Материально-техническая кладовая в подвале склада многоэтажного для хранения пр...
Типовой проект А-3-100(701-1-51.88) Помещения материально-технической кладовой в подвале пристройки бытовых и вспом...
Типовой проект А-3-100(701-1-50.87) Материально-технические кладовые на отм -4.500, (убежище на 100 человек, размер...
Типовой проект А-3-50(701-2-46с.88) Материально-технические кладовые в подвале склада многоэтажного для хранения пр...
Типовой проект П-1;П-2-135(703-3-6.84) Вспомогательные помещения подвала административно-бытовой части базы емкостью 5...
Типовой проект П-1-25(701-4-112.83) Бытовые помещения холодильника для хранения картофеля емк 3000 тонн, (убежище н...
Типовой проект П-1-90(701-1-33) Помещения для хранения несгораемого сантехнического и электрического оборудован...
НАШ СПЕЦИАЛИСТ ПОМОЖЕТ ВАМ




























